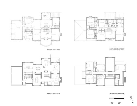
Newmarket House Norwich Is Getting A Total Modern Architectural Facelift
Book from a range of escorted tours, river cruises, short breaks and worldwide holidays with the award winning Newmarket Holidays. Newmarket is a market town and civil parish in the West Suffolk district of Suffolk, England, 14 miles west of Bury St Edmunds and 14 miles northeast of Cambridge. In 2021, it had a population of. Home of the Guineas & July Festival, there's no day out quite like one at Newmarket Racecourse in Suffolk. Learn more & buy official 2026 tickets here. WELCOME TO NEWMARKET, THE HOME OF HORSERACING This internationally recognised town has plenty for you to see and do and makes a perfect base for exploring the surrounding area. So,. Things to Do in Newmarket, England: See Tripadvisor's 19,715 traveller reviews and photos of Newmarket tourist attractions. Find what to do today, this weekend, or in March. We have reviews of.
Stay updated with the latest local news and events in Newmarket, brought to you by East Anglian Daily Times. Whether you’re a devoted horse-racing fan or just a lover of beautiful English towns, Newmarket is sure to appeal. Feb 5, 2026 · Newmarket News. Newmarket is the home of horse racing. Horse racing, live music and other events in Newmarket for 2025.
Mad for Mid-Century Modern: A New Architectural Style Comes to Norwich ...
